Кассетные потолок для коридорных зон CR 100-1/100-2 цвет палитра ral, размер 400х1500, перфорация 0,75
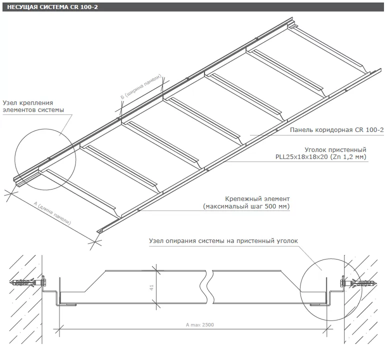
Потолочные конструкции, предназначенные специально для узких пространств, таких как коридоры, объединяют в себе инновационность и многофункциональность. Оптимально подходя для помещений шириной до 2,5 метра, эти системы предлагают идеальное решение для коридоров как в офисных, так и в помещениях с повышенной влажностью (санузлы, душевые, раздевалки).
Потолочные системы для узких пространств — идеальное решение для коридоров
Потолочные конструкции, предназначенные специально для узких пространств, таких как коридоры, объединяют в себе инновационность и многофункциональность. Оптимально подходя для помещений шириной до 2,5 метра, эти системы предлагают идеальное решение для коридоров как в офисных, так и в помещениях с повышенной влажностью.
Использование качественных материалов оцинкованной стали, обеспечивает долговечность и надежность потолочных систем, делая их пригодными для использования в условиях повышенной влажности, включая ванные комнаты, душевые и раздевалки.
Высокая эффективность и простота монтажа этих потолочных систем обеспечивается за счет их упрощенной конструкции. Это позволяет значительно сократить время установки, что особенно ценно в условиях ограниченных сроков.
Разнообразие размеров панелей позволяет настроить потолочную систему под любые размеры коридора, обеспечивая не только функциональность, но и визуальную привлекательность. Интеграция акустических вставок в перфорированные панели дополнительно улучшает акустические характеристики помещения, минимизируя уровень шума.
Потолочные системы для коридоров являются современным и эффективным решением для организации пространства. Благодаря их универсальности, долговечности и легкости в монтаже, эти системы становятся оптимальным выбором для создания комфортного и функционального пространства в коридорах коммерческих и жилых зданий.
| Размер | Гладкая | Перфорация 0.75 | Перфорация 1.5 | Перфорация 3.0 | 
|---|---|---|---|---|
| 400х1500 | 9028 | 9033 | 9036 | 9039 | 
| 400х2000 | 9029 | 9034 | 9037 | 9040 | 
| 400х2500 | 9030 | 9035 | 9038 | 9041 | 
| Элементы подсистемы для CLIP-IN AC | Гребенка ВТ-600 L=4000 мм | 9365 | ||
| Профиль ПП-1-2 | 9366 | |||
- Панели выполняются из оцинкованной стали. Толщина материала зависит от размера, типа и конфигурации продукта.
- Типовые изделия выпускаются с порошковым покрытием RAL 9010 (цвет белый матовый).
- F - дополнительная установка акустического флиса; М - установка акустического флиса и минеральной ваты 20 мм (при необходимости добавить к номеру продукта).
- При заказе не типовой продукции - действует повышающий коэффициент.
Таблица расчета комплектующих
| Наименование | Количество | 
|---|---|
| Панель коридорная CR-100 | L/B, где L – длина помещения | 
| Уголок пристенный | Lх2+2А | 
Состав системы
|   |   | 
Полимерное покрытие с высокими защитными и декоративными свойствами. Повышает антикоррозийную стойкость металлических изделий, делает их устойчивыми к агрессивной окружающей среде, воздействию солей, щелочам и кислотам, защи-щает от воздействия атмосферных факторов, воздействию УФ, ветра, влаги. Покраска в специально оборудованной камере гарантирует равномерность покраски, включая кромки, углы и прочие труднодоступные элементы.
Также возможно окраска в любой другой цвет по палитре RAL
Оплатить заказ можно безналичным расчетом на реквизиты компании после выставления счета менеджером!
Если у вас остались вопросы вы можете связаться с менеджером по телефону +7 351 211-08-23
Будьте внимательны!
| Свойства ПО строительных материалов | Класс ПО строительных материалов | |||||
|---|---|---|---|---|---|---|
| КМ0 | КМ1 | КМ2 | КМ3 | КМ4 | КМ5 | |
| Горючесть | НГ | Г1 | Г1 | Г2 | Г3 | Г4 | 
| Воспламеняемость | — | В1 | В2 | В2 | В2 | В3 | 
| Дымообразующая способность | — | Д2 | Д2 | Д3 | Д3 | Д3 | 
| Токсичность | — | Т2 | Т2 | Т2 | Т3 | Т4 | 
| Распространение пламени | — | РП1 | РП1 | РП2 | РП3 | РП4 | 
Определяющим показателем для класса ПО является группа горючести. Методами испытаний на горючесть по ГОСТу 30244-94 строительные материалы подразделяют на негорючие (НГ) и горючие (Г), чем больше показатель Г, тем материал более горюч.
| Требования ПО к каркасам подвесных потолков | Требования ПО к облицовкам потолков и стен | Требования ПО к наружным стенам с внешней стороны | 
|---|---|---|
| Во всех помещениях и на путях эвакуации (п. 5 Статьи 134) каркасы подвесных потолков в помещениях и на путях эвакуации следует выполнять из негорючих материалов. Окрашенные лакокрасочными покрытиями каркасы из негорючих материалов должны иметь группу горючести НГ или Г1 | В конкретных помещениях различных зданий КМ0-КМ4* На путях эвакуации во всех зданиях КМ0-КМ2* В зальных помещениях всех зданий КМ0-КМ3* * в зависимости от типа здания 
 | Для облицовки фасадов должны применяться системы наружного утепления класса конструктивной пожарной опасности К0, НО необходимо учитывать требования специалистов организаций, которые участвуют в «проектно изыскательских работах» и приёмке строительного объекта, которые зачастую учитывают и класс пожарной опасности облицовочного материала КМ0 (т.е. группу НГ). | 
- Выберите товары и нажмите заказать;
- Появится форма заказа;
- Укажите ваши данные;
- Выберите способ доставки и укажите адрес;
- Менеджер согласует с Вами заказ и уточнит сроки поставки;
- Менеджер выставить вам счет и вышлет его на электронную почту;
Если есть необходимость менеджер подготовит типовой договор.
Если у вас остались вопросы вы можете связаться с менеджером по телефону +7 351 211-08-23
Оплата принимается только по счету для юридических лиц.
Выбирите нужны товар и менеджер вам вышлет счет на оплату! Если остались вопросы свяжитесь с менеджером по телефону +7 351 211-08-23
- Самовывоз со склада в городе Челябинск
- Доставка транспортной компанией — рассчитывается индивидуально для каждого клиента менеджером филиала или по телефону +7 351 211-08-23
Доствка по городу Челябинск
- Стоимость доставка по городу — от 1500 рублей
Доствка по Челябинской области
32 рубля/километр (расчет только в одну сторону)
 
                                             
                                    




























